Quality Commercial Space | Complete with Fit Out For Lease

15 Queen Street, Ayr
Contact Agent
Offices
  • Car Spaces 2
  • Land Size 0 Square metres

Description

One of the Burdekin’s best kept commercial spaces is available for lease. Coming complete with the office fit out in place, car parking and a 10 KW solar system to reduce those quarterly power expenses.

Area:
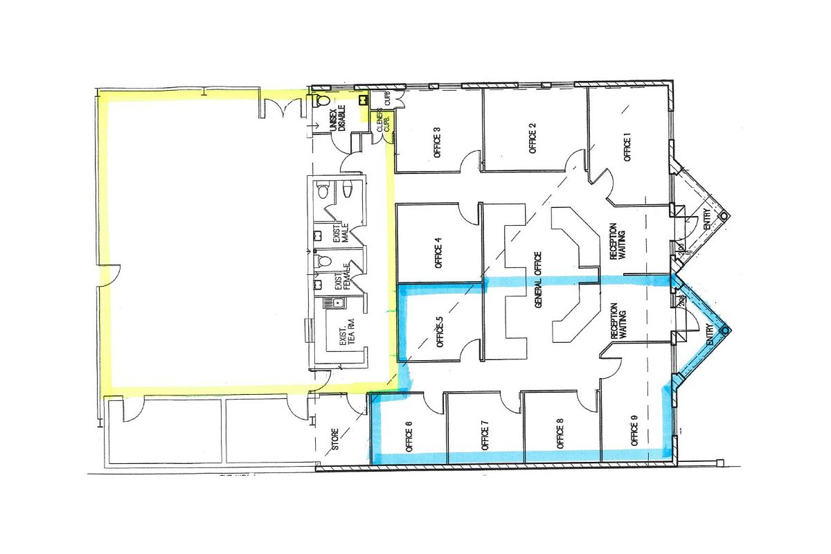
105 m2 – Exclusive use - highlighted in blue on floor plan
116 m2 – Shared multipurpose space – Highlighted in yellow on floor plan

Property Features Include:

Reception / waiting area
5 Office spaces - 2 offices having enough area for multiple work stations
Complete with fit out / carpet throughout
10 KW solar system / shared power expense
2 Car covered space at rear
Great on street parking

Rent:
$2,400 + GST per month

Outgoings:
50% of yearly rates

Quality fit out ready to move in. Contact Bill Micola on 0418 778 674 for further information or to inspect.

Show More

Floorplans

Floor Plan 1

Location