Spacious Family Home with Exceptional Shed & Flexible Living For Rent

149 Howlett Street, Currajong
$830 P/W
House
  • Bedrooms 5
  • Bathrooms 2
  • Car Spaces 6
  • Land Size 809 Square metres

Description

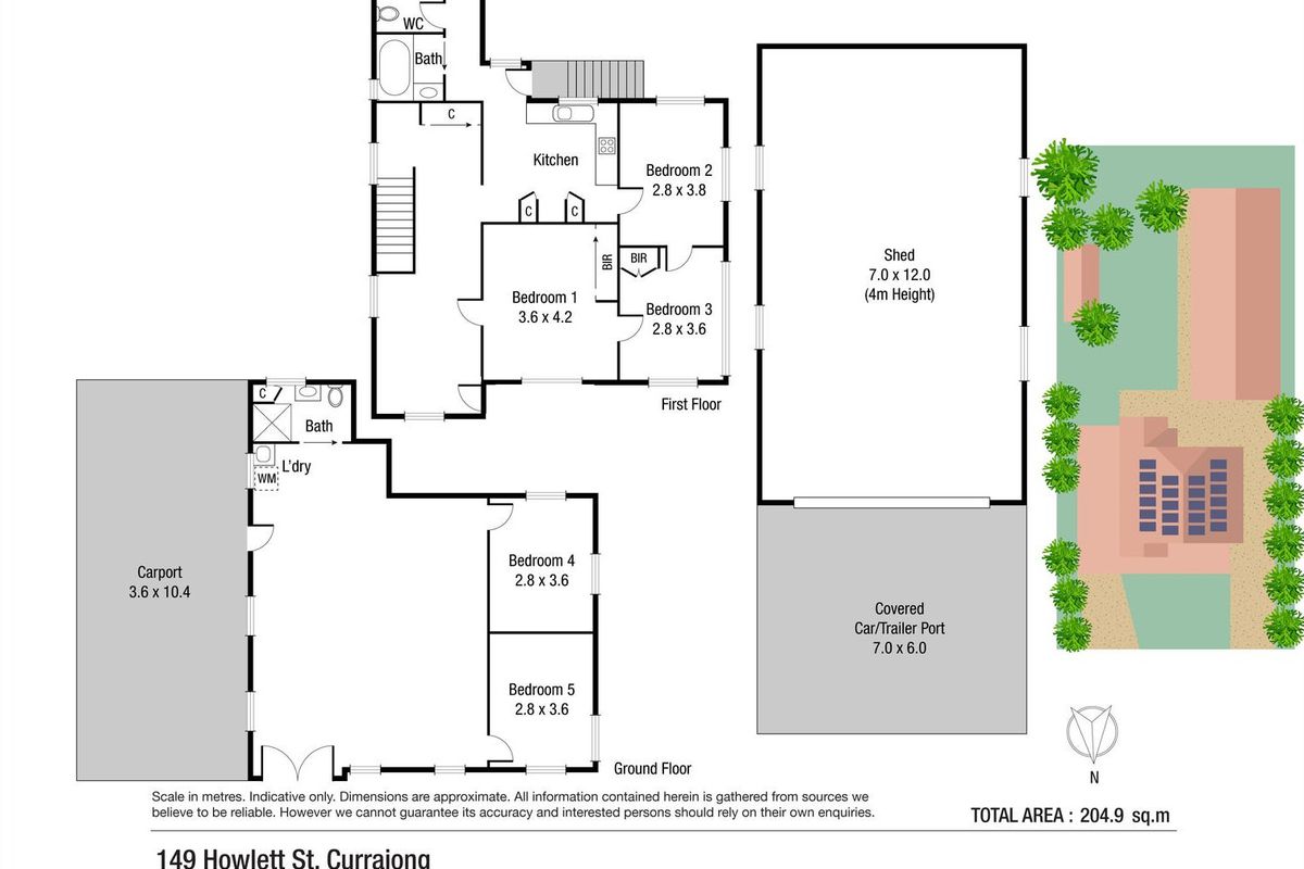
Positioned in a well-established Currajong street, this generously proportioned residence delivers outstanding space both inside and out. Offering five bedrooms across two levels, the home is well suited to large families, shared living arrangements, or anyone needing extra rooms for hobbies. The layout provides excellent separation, with multiple living zones and bathrooms spread across both floors, creating a practical and comfortable environment for everyday living.

Outdoors is where this property truly stands out. A standout, oversized shed with its own access is ideal for those needing serious storage, or secure parking for larger vehicles. The yard is well maintained with established lawns and gardens, complemented by dual driveways for ease of access. Conveniently located close to schools, shops, public transport and within an easy commute to the City and The Strand, this home combines functionality with a lifestyle of space and versatility.

Property Features Include:
- Five bedrooms across two levels, ideal for larger or extended families
- Two bathrooms, one on each level for added convenience
- Large, functional shed measuring approximately 12m x 7m with high clearance
- Separate concrete driveway access to the shed
- Additional undercover parking area adjacent to the shed
- Split system air conditioning for comfort throughout the year
- Well-maintained lawns and gardens with irrigation system
- Solar power system to assist with reducing electricity costs
- Dual driveways providing ample off-street parking
- Close to schools, local shops, public transport and approx. 6km to the CBD

Homes offering this level of space and shed capacity are rarely available — an opportunity not to be missed.

Show More

Heating & Cooling

  • Air Conditioning
  • Split-System Air Conditioning

Outdoor Features

  • Fully Fenced
  • Outdoor Entertainment Area
  • Secure Parking
  • Shed

Indoor Features

  • Broadband Internet Available
  • Built-in Wardrobes
  • Floorboards
  • Workshop

Eco Friendly Features

  • Solar Panels

Floorplans

Floor Plan 1

Location